Technické kreslení
Petr Fořt, Jaroslav Kletečka
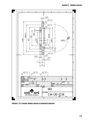
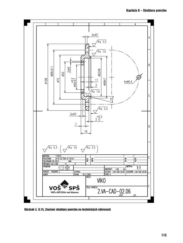
Aktualizovaná učebnice pro střední školy. Soustředí se především na základní pravidla názorného zobrazování a popisů objektů podle aktuálních státních norem (ČSN), které jsou v souladu s normami celoevropskými (EN) a celosvětovými (ISO). Ve dvanácti kapitolách se čtenář seznámí se základy...
Doprava již od 59 Kč (při objednávce nad 2.500 Kč je doprava ZDARMA)
© AMIPA s.r.o. [https://www.amipa.cz/]






